
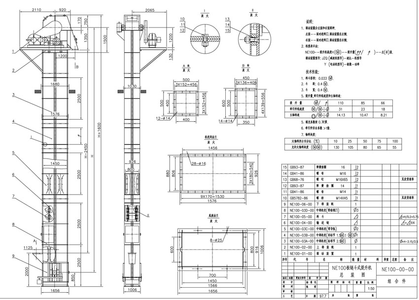
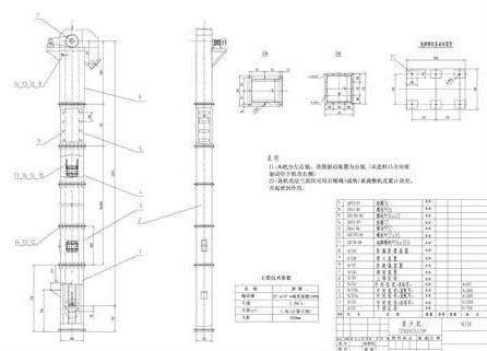
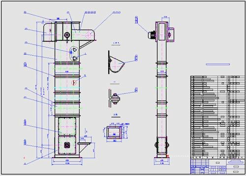
河南立友斗式提升機廠家是一家以物料提升機研發生產為主要營業范圍的廠家,可為粉末、冶金、化工、醫藥、礦山、建材、玻璃、食品、涂料、陶瓷、煤炭、石英砂等求購斗式提升機的廠家根據物料屬性提供垂直振動斗式提升機、TD皮帶式提升機、TH/HL環鏈式斗提機、NE板鏈斗式提升機的行業解決方案,其中包括結構圖紙繪畫、價格計算、廠家真機圖片展示,及到廠實地考察接待,我廠熱忱歡迎每一位領導前來考察,預約電話:13782587121。
我公司是隨著國家經濟體制改革的不斷深入發展,聚集了本行業內經營、技術、生產、管理方面的優秀人才,融會了本行業務中先進科學技術的精華,組建的礦山設備、振動機械、環保設備制造的股份制企業,泓博緣人共同財富的投入,使每一個泓博緣人真正對企業樹立了主人翁的責任感,匯成了一股不可估量的力量.